
Пять типоразмеров кляммеров для разной толщины облицовочных плит: 8, 10, 12, 13,5 и 16мм. В ассортименте есть специальные кляммера, позволяющие не привязывать раскладку плит к стыку вертикальных направляющих и предотвращающие горизонтальное смещение плит. Возможно крепить плиты размером 1200х600 на 4 лапки, в том числе над огневыми проемами.
Материал облицовки: плиты из керамического гранита толщиной 8—16 мм.
Способ крепления облицовочного материала: кляммерами видимого типа.
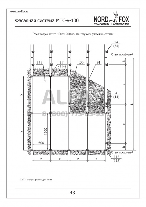
Максимальные размеры облицовки: 1000х1000мм, 1200х600мм (горизонтальное и вертикальное расположение).
Вынос облицовочного материала от плоскости стены: 58—519 мм.
Решения оконных обрамлений — оцинкованная сталь, керамогранит.
Вариант крепления кронштейнов:
-
стандартный – с креплением в стены;
-
межэтажный – с креплением в перекрытия.