ALFAS
Ростов-на-Дону
Сменить город
info@al-fas.ru
Скачать презентацию
+8 (800) 775-05-93
Вы можете
заказать звонок
Меню
Ограждения
Фасады
Алюминиевые сотовые панели
Алюминиевые композитные панели
Стальные композитные панели
Фиброцементные плиты
Фасадный керамогранит
Фасадные кассеты / Металлокассеты
Фасонные элементы
Стеклофибробетон
Тонкий керамогранит
Натуральный камень
Искусственный камень
Натуральное дерево / Планкен
HPL – панели / Компакт ламинат
Терракотовые панели
Профлист
Листовой материал
Алюминий 0,2 – 3 мм
Оцинкованная сталь 0,25 – 2 мм
Поликарбонат
Системы
Изоляция
Крепёж
Ограждения
Услуги
Монтаж вентилируемых фасадов под ключ
Монтаж НВФ из композита / керамогранита / металлокассет / фиброцементных панелей / натурального камня
Проектирование НВФ
Визуализация / Дизайн-проект; Проектирование вентилируемого фасада; Геодезия фасада
Обработка композитного материала
Раскрой; Фрезеровка; Вырубка углов/проушин; Вальцовка; Перфорация; УФ-Печать; Сборка кассет
Покраска материала
Покраска рулонного алюминия/стали; Покраска металлоизделий; Покраска листового материала
Обработка металла
Резка, рубка металла; Гибка листового металла; Лазерная резка металла; Плазменная резка металла
Фрезеровка 2D и 3D обработка листовых материалов
Текстолита; Оргстекла; Акрила ; Алюминиевых композитных панелей ; Стальных композитных панелей ; ПВХ; Поликарбоната
Объекты
Список объектов
Объекты на карте
Контакты
Рассчитать
О нас
О компании
Контактная информация
Контактная информация, реквизиты компании, форма обратной связи
Новости / акции компании
Открытые вакансии
Каталог RAL цветов
Статьи и аналитика
Словарь терминов
Ложная экономия
Тематические видео
Библиотека проектировщика
Техническая информация
Конфиденциальность
Главная
Фасадные системы
Фасадные системы под Искусственный камень
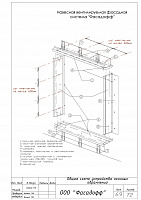
Фасадная система Fasadoff под Искусственный камень
Фасадная система Fasadoff под Искусственный камень
Описание системы
Документация к системе
Фотографии + чертежи + узлы
Комплектующие
Элементы навесной вентилируемой системы: - паронитовая прокладка; - кронштейн; - горизонтальный профиль; - вертикальный профиль; Дополнительные элементы: - стальные профили для обрамления оконных и дверных проемов; - подоконники, оконные сливы; - крепежные элементы (анкера, саморезы, заклепки)
0729ebc9b24bae815518e6a67183fcc7
pdf, 9.36 МБ
864aacdbe2b152b088b4479ef5cd37f1
jpg, 1.32 МБ
751ce8d04b7fe05319c443f4f4416c11
jpg, 1.33 МБ
910571c0ad85c0e774642f694583bfa7
3daac82a683a5a4e9a22d5f75a017152
06798b01cb9a614db59a65b88d05982c
5286e2f65bb0ce05ad7dd797f8afc596
Для вас предусмотрена скидка от базовых цен!
Отправить заявку
Другие фасадные системы под
Искусственный камень
Фасадная система
РОНСОН-500
Материал: Оцинкованая сталь
Крепление: Скрытое
Фасадная система
РОНСОН-500
Материал: Оцинкованая сталь
Крепление: Скрытое
Фасадная система
РОНСОН-500
Материал: Оцинкованая сталь
Крепление: Скрытое
Фасадная система
РОНСОН-500
Материал: Оцинкованая сталь
Крепление: Скрытое
Фасадная система
РОНСОН-500
Материал: Оцинкованая сталь
Крепление: Скрытое
Фасадная система
РОНСОН-500
Материал: Оцинкованая сталь
Крепление: Скрытое
Фасадная система
РОНСОН-500
Материал: Оцинкованая сталь
Крепление: Скрытое
Фасадная система
РОНСОН-500
Материал: Оцинкованая сталь
Крепление: Скрытое
Фасадная система
ZIAS 100.05 MAXIMA Medium
Материал: Оцинкованая сталь
Крепление: Скрытое
Фасадная система
РОНСОН-500
Материал: Оцинкованая сталь
Крепление: Скрытое
Заказать расчёт сметы. БЕСПЛАТНО!